מזמיןקופת חולים כללית
אדריכלמרסלו ברסטוביסקי
שטח900 מ"ר
שנת אכלוס צפוי - 2022
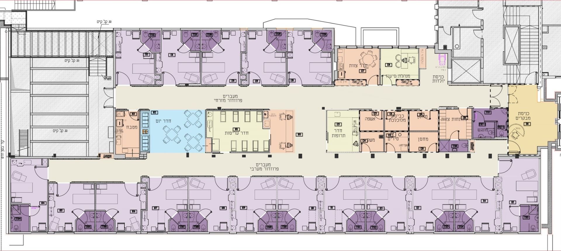
מיקום| פתח תקווה בי"ח בלינסון

מחלקת אשפוז יולדות כולל חדרים בודדים עבור יולדות. הפרויקט מבוצע במבנה משנת 1940 וכולל התאמות מהותיות, שדרוג תשתיות ופעילות במבנה קיים ופועל.

מחלקת יולדות
מחלקת יולדות
מחלקת יולדות
מחלקת יולדות